Tipo: Pequeña depuración
Cliente: Salher Ibérica S.L.
Localización: Casablanca (Marruecos)
Año: 2007
Características:
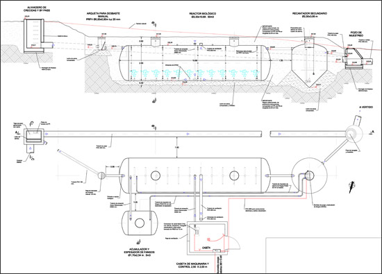
Capacidad 1.000 hab/eqv.
Tratamiento biológico secundario y terciario con filtración autolimpiante.
Actuaciones:
Proyecto y asistencia técnica a la dirección de obra.
Equipo de depuración prefabricado para el tratamiento de las aguas residuales de urbanización con capacidad para 1.000 hab/eqv. Incluye reutilización de aguas con tratamiento terciario.
Copyright © 2011 Abakal Ingenieros Consultores C/ Carrera Toledana, 33 - 28500 Arganda del Rey - Madrid | T. +34 918 732 860 | F. +34 918 757 530 | info@abakal.com